
棋牌平台,棋牌官网网站,棋牌游戏APP下载这份中环内近乎绝迹的滨水视野,堪称城市资源的“硬通货”。作为上海中心城区最后一片大规模滨水开发板块,这里规划总开发体量达840万㎡,未来将崛起480米超塔地标及19栋摩天集群,执掌全球城市会客厅的核心发展红利。与外滩的百年风华、陆家嘴的金融活力形成的,既沉淀着老上海的历史底蕴,又聚合着城市顶级资源,地段价值堪称无可替代。
大悦城控股在上海坚持城市共生,立足“一江一河”城市战略,从陆家嘴的海派复兴到苏河湾畔的人文共生, 从国际前滩探寻城市新生到和平公园的东方意境,中粮大悦城以全球高端人居理念,开启上海“壹号系”的“一江一河”生长之路。
上海城市根脉凝于黄浦江湾,世界都会原点在此觉醒。溯源千年的壹号之地,大国文明的精神原乡。
北宋年间设立“上海务”开始,上海遂得名。当古河成为街道,下海浦仍旧为这片土地留下了“提篮桥”的称谓与一座下海庙。
1848年北外滩美租界开辟,英、美、日相继在此抢滩设立码头,北外滩成为上海水上门户。
上世纪三四十年代,以欧洲侨民为核心的“国际社区”风貌,在提篮桥历史文化风貌区得以保留。
千禧年之前,代表上海发展高度和速度的沪东商业中心:提篮桥第一高——大名饭店、第一家旋转餐厅——远洋宾馆旋转餐厅、中国第一家证券交易所——上海证券交易所。
· 超高建筑群重塑浦西城市天际线米的浦西第一个高楼北外滩中心9根巨型结构柱已跃出地面,进入地上施工阶段,预计2030年完工。
☑️☑️中粮·北外滩壹号售楼处电线年北外滩新元年开始,《北外滩地区控制性详细规划》获批后,虹口区制定了“三年出形象、五年塑功能、十年基本建成”的发展目标,将北外滩定位为“新时代都市发展新标杆”和上海“中心辐射”新引擎。
当黄浦江的百年潮声叩响城市记忆,中粮大悦城上海第五座壹号系,以更厚重的迭代之势,深植海派文化根系,以谦恭之姿对话历史文脉,以全球格局焕新城市界面。
这一次,不仅是「壹号」基因的传承,更是众多领域大师的匠心共著——从空间美学到细节工艺,从功能规划到精神共鸣,以跨界的智慧碰撞,雕琢大悦城控股上海又一封面力作。
☑️☑️中粮·北外滩壹号售楼处电线万/㎡!【中粮·北外滩壹号】90席185-228㎡云际大平层即将入市!黄金三角芯·江景封面著!
标配子母门,进门双玄关柜+储藏间设计;约270°环幕大边厅尺度感十足;高区直面陆家嘴城市天际线+黄浦江景观,视野开阔!
精装标准全面看齐国际顶豪,全系标配中央空调、全屋地暖、新风系统“三大件”,甄选劳芬、高仪、博世等国际一线品牌,更融入全屋智能控制系统、中央净水系统等高端配置,细节处尽显生活质感。外立面采用玻璃幕墙搭配进口葡萄牙米黄石材,既延续北外滩的典雅调性,又塑造出极具辨识度的现代轮廓,彰显央企精工的硬核底气。
坐拥“四轨三隧两快速”立体交通网络,无缝衔接城市脉搏;历史文脉与摩登繁华的双重馈赠,于繁华之上缔造理想生活图景。
外滩万国建筑群(约2.4公里)、陆家嘴三件套(约2.2公里),于窗前定格经典天际线。
而当散点式的地王与明星楼盘不断雕刻局部价格天花板时,其背后实则遵循着一套更为实际且统一的价值叙事——稀缺性。
顺着稀缺性这一罗盘,我们便能清晰地洞察,真正的价值灯塔始终锚定于那片不可再生的核心资源:滨江住宅
而上海人又恰恰对滨江住宅的要求近乎极致,既要占位城市重要规划点,又要有超出一般豪宅调性的品质,所以滨江住宅一直都是贵奢的代表。
在上海一线滨江板块地图中,陆家嘴,黄浦滨江、徐汇滨江等地新房单价都已突破
凭心而论,北外滩新房单价卖到19万我一点也不奇怪。答案显而易见:北外滩一直都是时代的佼佼者,它既是百年前海纳百川的港口,又是今日的世界会客厅,还是上海的未来发展引擎。所以,当人们以为北外滩新房售价即将冲向19万/㎡、未来买入北外滩将付出巨大经济代价时,一个巨大的历史性机遇,
均价14.38万,总价约3000万起,这个价格无疑是北外滩错过再无的抄底机遇!
中粮大悦城上海第五座壹号系,“世界S湾壹号作品”——【中粮·北外滩壹号】开盘热卖中!
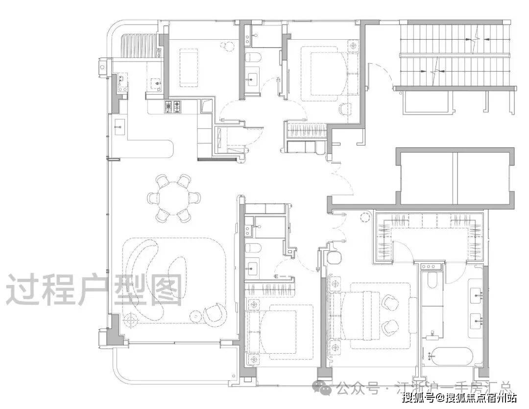
LDKB一体化设计的客餐厅面积达到约55㎡,方正大气。主卧套房尺度豪奢,可供业主配置步入式衣帽间,卫生间做到双台盆+大浴缸+独立淋浴
☑️☑️中粮·北外滩壹号售楼处电线户设计,私享电梯厅独立入户,户型尺度进一步升级,当今顶豪新盘中极为稀缺的四开间朝南。
带来极好的采光,并且高区可以直面陆家嘴城市天际线+黄浦江景观,视野相当震撼!
室内设计由中国现代室内设计领域的领军人物——梁志天亲自打造。在材质选用上,延续了壹号系的高端标准,大量运用奢石、高难度弧形工艺以及国内外顶尖品牌。
唯宝卫浴、当代龙头及花洒......还有全屋华为智能家居系统配置。这一套组合,是真正意义上的顶豪序列配置!☑️☑️中粮·北外滩壹号售楼处电话:☑️☑️土拍回顾及规划
项目四至范围:东至保定路、hk367-02、hk367-05地块,南至昆明路,西至 hk367-03、hk367-04 地块,北至唐山路。
项目总用地面积约23849.2平方米,容积率1.95,总计容建面4.65万㎡,是上海市中心罕见的无商办、无15%自持住宅、无5%保障房的纯住宅项目。
高层共90套、产品面积段约180-228m²,风貌别墅共118套,产品面积段约130-350m²,其中主力建面约m²(占比约83%)
☑️☑️中粮·北外滩壹号售楼处电话:☑️☑️公区方面,从归家社区大堂、大堂序厅、以及入户单元大堂一路看过来,体现出一套脉络完整,层层递进的海派顶奢设计语言。
约1800㎡的私享顶奢会所。按户均占有会所资源计来算,这在当今顶豪圈是顶尖的水平。
瑜伽健身区,大幅落地窗引入自然光线,天花的格栅造型,地面的复古拼花木地板,都透出浓厚的海派风情。
雅集共聚区内,除了常规的阅读,棋牌等功能外,甚至设有一个舞蹈录音室,配置之高,沪上少见。
因为这是中粮大悦城的壹号系,珠玉在前,小编完全不担心会所未来兑现的效果,甚至已经很期待看到未来会所开放展示的那一刻。
,从百年梧桐下的静谧巷道,到充满未来感的艺术庭院,共同构成一个鲜活立体的生活剧场。
商业方面:项目出门就是高浓度的国际生活主场,步行可达北外滩来福士(约600米)、瑞虹天地太阳宫(约350米)、白玉兰广场(约1公里),未来还将会兴建全球最火的时尚奢侈品商场之一的SKP。
半径3km内,还可以同时覆盖外滩、陆家嘴、苏河湾等“黄金三角”的繁华商业!
周边学府众多,优质教育资源密集。北侧的长青学校是老牌的九年一贯制公办重点,南侧的上海中学国际部是知名民办名校,距离新华初级中学(常年四校八大预录人数上百),新复兴初级中学,这两所虹口的顶尖民办学校也都在直线KM内(新房不承诺对口学校,具体以实际为准)。
周边有复旦大学红房子妇产科医院,守护着每一个家庭的人生重要时刻。、以及三甲新华医院、上海市第一人民医院为健康生活保驾护航。
周边有22公顷无车漫步区、3.5万平方米航海公园与中央绿地相融,3.4公里滨江休闲岸线